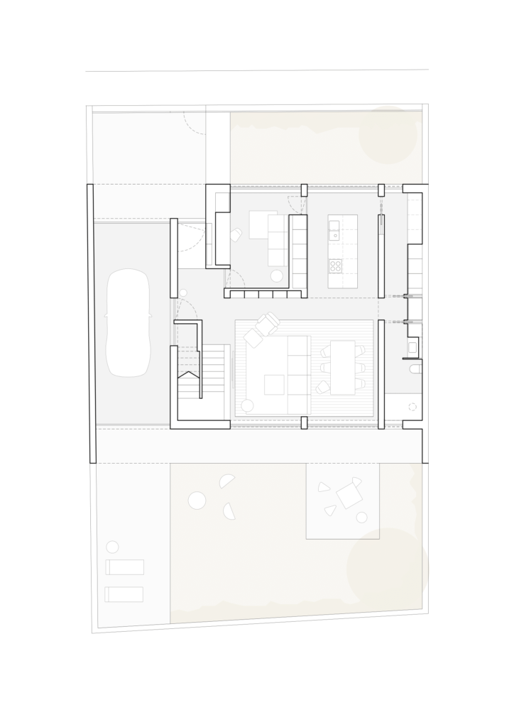
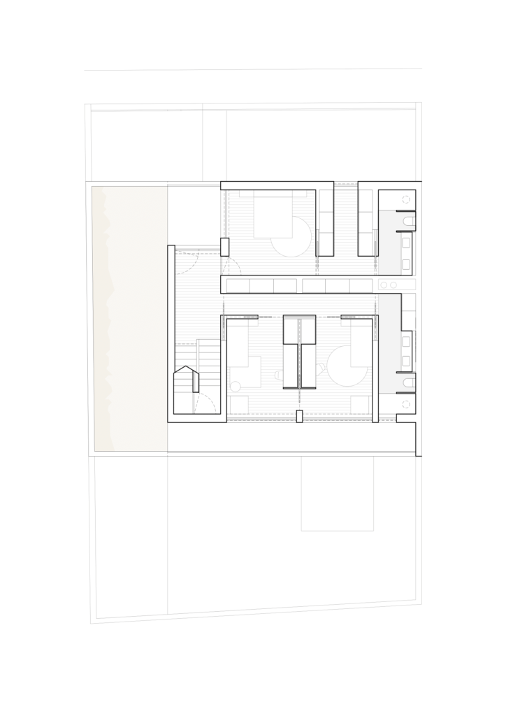
aboboda Arquitectura: João Freira Aragão, Francisco FreireLocal: CascaisAno: 2024Área: 200m²Estado: Em construção projectos sobre contactos